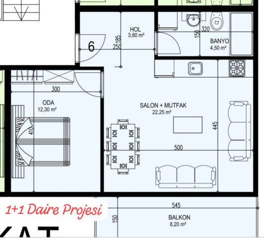
Yeni projemiz Yalova`nın yükselen değeri Termal Caddesi üzerinde Kültür Merkezi, Bonsai Müzesi ve Kapalı Halı Saha gibi sosyal alanların olduğu merkezi bölgede, 1+1, 2+1 ve 3+1 daire seçenekleriyle 1570m2 arsa üzerine 2 Blok 1. Sınıf işçilik ve malzeme kalitesiyle inşa edilecektir. Proje başlama tarihi Kasım 2025 olarak planlanmaktadır.
A Blok Projesi
B Blok Projesi






